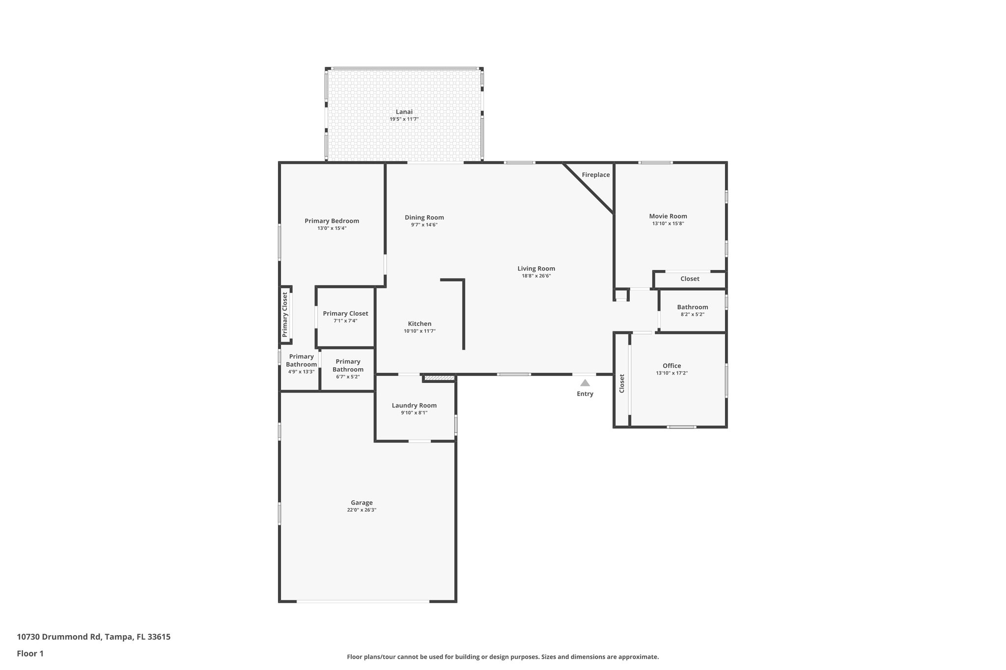
10730 Drummond Rd, Tampa, FL 33615
Toggle Navigation
Images
Videos
Floor Plans
3D Tour
Map
10730 Drummond Rd
Tampa, FL 33615
Scroll to Content
Images
Slideshow
Photo Grid
Hide
Previous
Next
Show more
Videos
Floor Plans
Slideshow
Photo Grid
Hide
Previous
Next
3D Tour
Content Coming Soon